Property 14 from 23
Next property
Previous property
Back to the overview

code
Back to the overview
Next property
Previous property
Back to the overviewColonia de Sant Jordi: Moderne Neubauwohnungen in Colonia de Sant Jordi
Property ID: A8031SJ
Quick Contact
Options
Options
Basic information
Address:
07638 Colonia de Sant Jordi
Islas Baleares
Islas Baleares
Region:
Mallorca
Area:
1A
Price:
560.000 €
Living space:
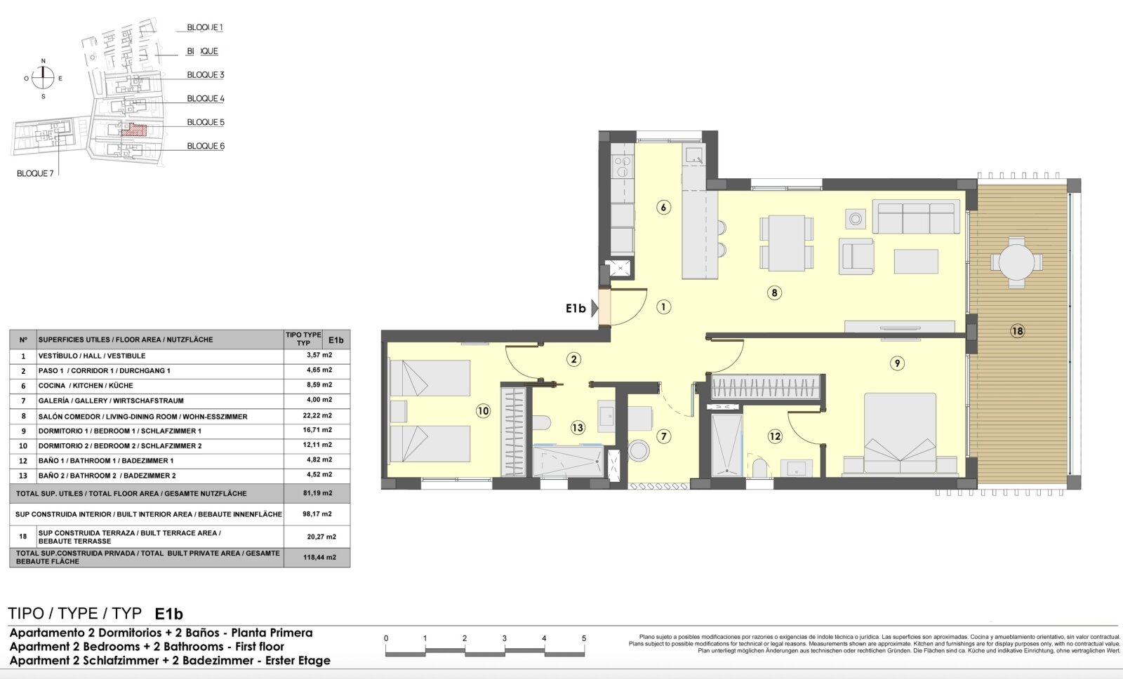
98 sq. m.
No. of rooms:
3
Details
Details
Type of apartment:
Appartment
Storey:
1
Number of floors:
2
Subject to commission:
no
Useable area:
118 sq. m.
Kitchen:
Fitted kitchen
Bathroom:
Shower
Number of bedrooms:
2
Number of bathrooms:
2
Terrace:
1
Pool:
yes
Air condition:
yes
Furnished:
Partly furnished
Quality of fittings:
Luxury
Year of construction:
2026
Vacant from:
November 2026
Floor covering:
Tiles
Condition:
First occupier
Energy class:
In progress
Further information
Further information
Property description:
Neubauwohnung in Colònia de Sant Jordi – 2 SZ, Terrasse, Gemeinschaftspool
Wir präsentieren Ihnen eine hochwertige Neubauwohnung in einer modernen Anlage in dem idyllischen Küstenort Colònia de Sant Jordi, im Süden Mallorcas.
Die Wohnung bietet eine Wohnfläche von 98 m² mit folgender Aufteilung:
• 2 großzügige Schlafzimmer
• 2 moderne Badezimmer
• Offener Wohn- und Essbereich mit integrierter Küche
• 20 m² große private Terrasse
Die Immobilie befindet sich in einer fortgeschrittenen Bauphase, die Fertigstellung ist für November 2026 geplant.
Wir präsentieren Ihnen eine hochwertige Neubauwohnung in einer modernen Anlage in dem idyllischen Küstenort Colònia de Sant Jordi, im Süden Mallorcas.
Die Wohnung bietet eine Wohnfläche von 98 m² mit folgender Aufteilung:
• 2 großzügige Schlafzimmer
• 2 moderne Badezimmer
• Offener Wohn- und Essbereich mit integrierter Küche
• 20 m² große private Terrasse
Die Immobilie befindet sich in einer fortgeschrittenen Bauphase, die Fertigstellung ist für November 2026 geplant.
Furnishings:
Ausstattung & Highlights
• Gemeinschaftspool zur exklusiven Nutzung der Bewohner
• Moderne Wärmepumpe für Heizung und Warmwasser
• Hochwertige Bauausführung mit zeitgemäßem Design
• Optional: Stellplatz und Abstellraum verfügbar (je nach Einheit)
Der Kaufpreis beträgt 560.000 €. Es besteht die Möglichkeit, die Immobilie mit einem hochwertigen Möbel- und Ausstattungspaket komplett möbliert zu erwerben.
Peris für das komplette Einrichtungspaket: 45.800 €. Gesamtpreis inkl. Möblierung: 605.800 €
Einziehen und sofort wohlfühlen - ohne zusätzliche Planung oder Aufwand.
• Gemeinschaftspool zur exklusiven Nutzung der Bewohner
• Moderne Wärmepumpe für Heizung und Warmwasser
• Hochwertige Bauausführung mit zeitgemäßem Design
• Optional: Stellplatz und Abstellraum verfügbar (je nach Einheit)
Der Kaufpreis beträgt 560.000 €. Es besteht die Möglichkeit, die Immobilie mit einem hochwertigen Möbel- und Ausstattungspaket komplett möbliert zu erwerben.
Peris für das komplette Einrichtungspaket: 45.800 €. Gesamtpreis inkl. Möblierung: 605.800 €
Einziehen und sofort wohlfühlen - ohne zusätzliche Planung oder Aufwand.
Location:
Top-Lage – Colònia de Sant Jordi
Diese ruhige und charmante Ortschaft ist umgeben von einigen der schönsten Strände Mallorcas wie Es Trenc, Es Dolç und Es Carbó. Die Region ist besonders beliebt bei Familien und Ruhesuchenden, aber auch bei sportlich Aktiven dank zahlreicher Rad- und Wanderwege.
Infrastrukturell ist Colònia de Sant Jordi sehr gut aufgestellt:
Supermärkte, Restaurants, Cafés, Yachthafen, medizinische Versorgung und regelmäßige Busverbindungen nach Palma und zum Flughafen.
Diese ruhige und charmante Ortschaft ist umgeben von einigen der schönsten Strände Mallorcas wie Es Trenc, Es Dolç und Es Carbó. Die Region ist besonders beliebt bei Familien und Ruhesuchenden, aber auch bei sportlich Aktiven dank zahlreicher Rad- und Wanderwege.
Infrastrukturell ist Colònia de Sant Jordi sehr gut aufgestellt:
Supermärkte, Restaurants, Cafés, Yachthafen, medizinische Versorgung und regelmäßige Busverbindungen nach Palma und zum Flughafen.
Miscellaneous:
Zögern Sie nicht, uns zu kontaktieren, um weitere Informationen zu erhalten oder einen Termin zu vereinbaren.
Eine perfekte Gelegenheit für Ihr neues Zuhause oder eine wertstabile Investition auf Mallorca.
Eine perfekte Gelegenheit für Ihr neues Zuhause oder eine wertstabile Investition auf Mallorca.
Remarks:
Die von uns gemachten Informationen beruhen auf Angaben des Verkäufers bzw. der Verkäuferin. Für die Richtigkeit und Vollständigkeit der Angaben kann keine Gewähr bzw. Haftung übernommen werden. Ein Zwischenverkauf und Irrtümer sind vorbehalten.
General business conditions:
Wir weisen auf unsere Allgemeinen Geschäftsbedingungen hin. Durch weitere Inanspruchnahme unserer Leistungen erklären Sie die Kenntnis und Ihr Einverständnis.
AUF WUNSCH empfehlen wir Ihnen Finanzierungsexperten von namhaften Häusern vor Ort.
Your contact person

Mallorca Dream Team 2014 S.L.
Mr. Jurij Steiger
Av. des bon temps 5
07560 Cala Millor
Office: www.mallorca-dream.eu
Mobile phone: +34 634 343458
Mr. Jurij Steiger
Av. des bon temps 5
07560 Cala Millor
Office: www.mallorca-dream.eu
Mobile phone: +34 634 343458
Back to the overview








