Objeto 19 de 26
Inmueble siguiente
Inmueble anterior
Volver al resumen

Volver al resumen
Inmueble siguiente
Inmueble anterior
Volver al resumenColonia de Sant Jordi: Moderne Neubauwohnungen in Colonia de Sant Jordi
Referencia: A8031SJ
Contacto rápido
Opciones
Opciones
Datos generales
Dirección:
07638 Colonia de Sant Jordi
Islas Baleares
Islas Baleares
Región:
Mallorca
Área:
1A
Precio:
560.000 €
Superficie útil aprox.:
98 m²
Cantidad habitaciones:
3
Más datos
Más datos
Tipo de vivienda:
Apartamento
Planta:
1
N° de plantas:
2
Comisionable:
no
Superficie constr. aprox.:
118 m²
Cocina:
Cocina completa
Baño:
Ducha
Cantidad dormitorios:
2
Cantidad baños:
2
Terraza:
1
Piscina:
sí
Aire acondicionado:
sí
Mobiliario:
Semi-amueblado
Calidad del mobiliario:
Lujo
Año de construcción:
2026
Disponible a partir de:
November 2026
Pavimento:
Baldosas
Estado:
A estrenar
Clase energética:
En curso
Descripción detallada
Descripción detallada
Descripción del inmueble:
Neubauwohnung in Colònia de Sant Jordi – 2 SZ, Terrasse, Gemeinschaftspool
Wir präsentieren Ihnen eine hochwertige Neubauwohnung in einer modernen Anlage in dem idyllischen Küstenort Colònia de Sant Jordi, im Süden Mallorcas.
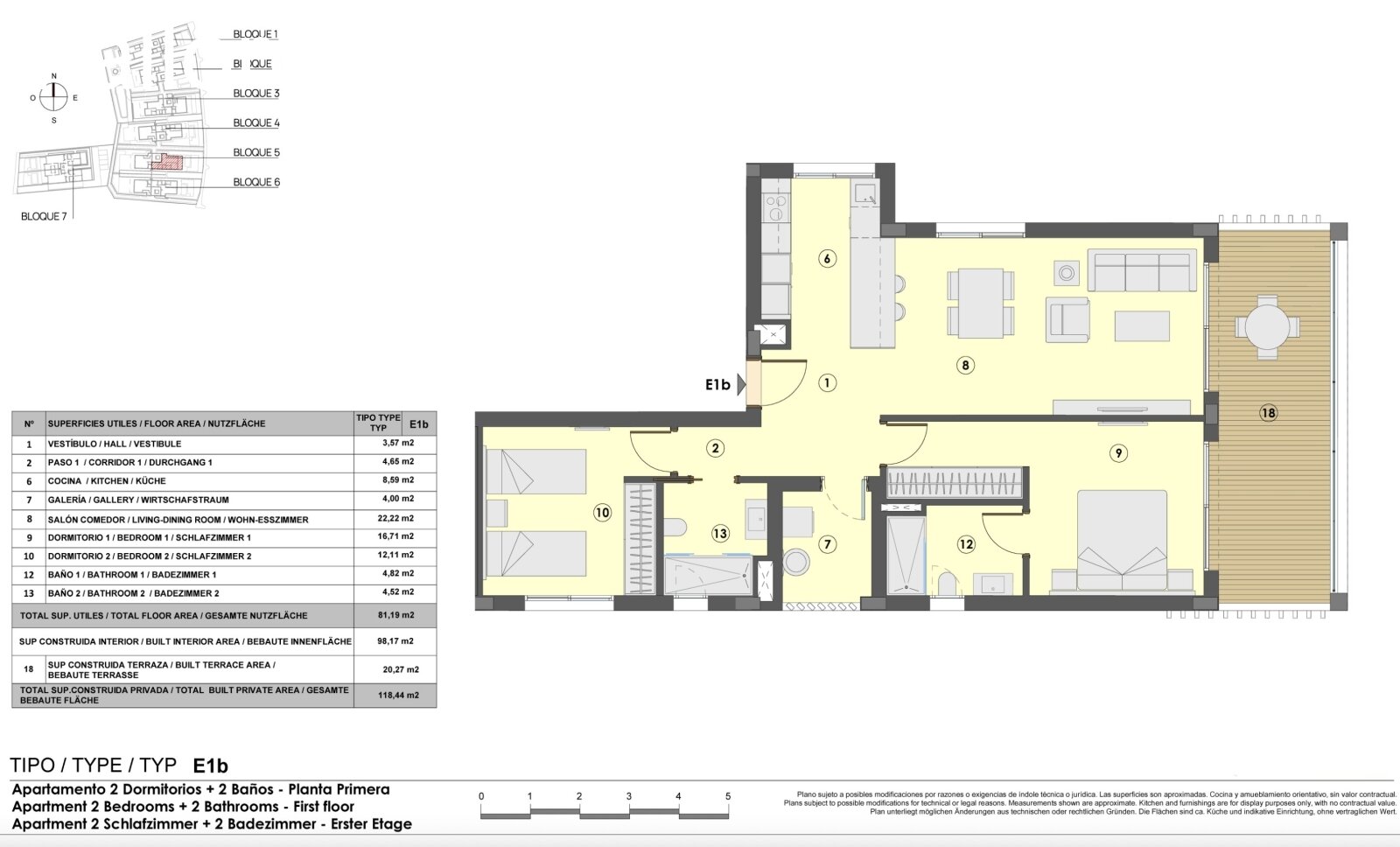
Die Wohnung bietet eine Wohnfläche von 98 m² mit folgender Aufteilung:
• 2 großzügige Schlafzimmer
• 2 moderne Badezimmer
• Offener Wohn- und Essbereich mit integrierter Küche
• 20 m² große private Terrasse
Die Immobilie befindet sich in einer fortgeschrittenen Bauphase, die Fertigstellung ist für November 2026 geplant.
Wir präsentieren Ihnen eine hochwertige Neubauwohnung in einer modernen Anlage in dem idyllischen Küstenort Colònia de Sant Jordi, im Süden Mallorcas.
Die Wohnung bietet eine Wohnfläche von 98 m² mit folgender Aufteilung:
• 2 großzügige Schlafzimmer
• 2 moderne Badezimmer
• Offener Wohn- und Essbereich mit integrierter Küche
• 20 m² große private Terrasse
Die Immobilie befindet sich in einer fortgeschrittenen Bauphase, die Fertigstellung ist für November 2026 geplant.
Equipamiento:
Ausstattung & Highlights
• Gemeinschaftspool zur exklusiven Nutzung der Bewohner
• Moderne Wärmepumpe für Heizung und Warmwasser
• Hochwertige Bauausführung mit zeitgemäßem Design
• Optional: Stellplatz und Abstellraum verfügbar (je nach Einheit)
Der Kaufpreis beträgt 560.000 €. Es besteht die Möglichkeit, die Immobilie mit einem hochwertigen Möbel- und Ausstattungspaket komplett möbliert zu erwerben.
Peris für das komplette Einrichtungspaket: 45.800 €. Gesamtpreis inkl. Möblierung: 605.800 €
Einziehen und sofort wohlfühlen - ohne zusätzliche Planung oder Aufwand.
• Gemeinschaftspool zur exklusiven Nutzung der Bewohner
• Moderne Wärmepumpe für Heizung und Warmwasser
• Hochwertige Bauausführung mit zeitgemäßem Design
• Optional: Stellplatz und Abstellraum verfügbar (je nach Einheit)
Der Kaufpreis beträgt 560.000 €. Es besteht die Möglichkeit, die Immobilie mit einem hochwertigen Möbel- und Ausstattungspaket komplett möbliert zu erwerben.
Peris für das komplette Einrichtungspaket: 45.800 €. Gesamtpreis inkl. Möblierung: 605.800 €
Einziehen und sofort wohlfühlen - ohne zusätzliche Planung oder Aufwand.
Ubicación:
Top-Lage – Colònia de Sant Jordi
Diese ruhige und charmante Ortschaft ist umgeben von einigen der schönsten Strände Mallorcas wie Es Trenc, Es Dolç und Es Carbó. Die Region ist besonders beliebt bei Familien und Ruhesuchenden, aber auch bei sportlich Aktiven dank zahlreicher Rad- und Wanderwege.
Infrastrukturell ist Colònia de Sant Jordi sehr gut aufgestellt:
Supermärkte, Restaurants, Cafés, Yachthafen, medizinische Versorgung und regelmäßige Busverbindungen nach Palma und zum Flughafen.
Diese ruhige und charmante Ortschaft ist umgeben von einigen der schönsten Strände Mallorcas wie Es Trenc, Es Dolç und Es Carbó. Die Region ist besonders beliebt bei Familien und Ruhesuchenden, aber auch bei sportlich Aktiven dank zahlreicher Rad- und Wanderwege.
Infrastrukturell ist Colònia de Sant Jordi sehr gut aufgestellt:
Supermärkte, Restaurants, Cafés, Yachthafen, medizinische Versorgung und regelmäßige Busverbindungen nach Palma und zum Flughafen.
Otros:
Zögern Sie nicht, uns zu kontaktieren, um weitere Informationen zu erhalten oder einen Termin zu vereinbaren.
Eine perfekte Gelegenheit für Ihr neues Zuhause oder eine wertstabile Investition auf Mallorca.
Eine perfekte Gelegenheit für Ihr neues Zuhause oder eine wertstabile Investition auf Mallorca.
Nota:
Die von uns gemachten Informationen beruhen auf Angaben des Verkäufers bzw. der Verkäuferin. Für die Richtigkeit und Vollständigkeit der Angaben kann keine Gewähr bzw. Haftung übernommen werden. Ein Zwischenverkauf und Irrtümer sind vorbehalten.
Condiciones generales:
Wir weisen auf unsere Allgemeinen Geschäftsbedingungen hin. Durch weitere Inanspruchnahme unserer Leistungen erklären Sie die Kenntnis und Ihr Einverständnis.
AUF WUNSCH empfehlen wir Ihnen Finanzierungsexperten von namhaften Häusern vor Ort.
Persona de contacto

Mallorca Dream Team 2014 S.L.
Señor Jurij Steiger
Av. des bon temps 5
07560 Cala Millor
Oficina: www.mallorca-dream.eu
Teléfono móvil: +34 634 343458
Señor Jurij Steiger
Av. des bon temps 5
07560 Cala Millor
Oficina: www.mallorca-dream.eu
Teléfono móvil: +34 634 343458
Volver al resumen








