Objekt 2 von 16
Nächstes Objekt
Vorheriges Objekt
Zurück zur Übersicht

code
Zurück zur Übersicht
Nächstes Objekt
Vorheriges Objekt
Zurück zur ÜbersichtPalma de Mallorca: Vielfältig nutzbare Gewerbefläche mit hoher Decke, großer Fensterfront & Terrassenoption
Objekt-Nr.: L8039PM
Schnellkontakt
Optionen
Optionen
Basisinformationen
Adresse:
07006 Palma de Mallorca
Islas Baleares
Islas Baleares
Region:
Mallorca
Gebiet:
Stadtteil
Objektart:
Laden
Preis:
250.000 €
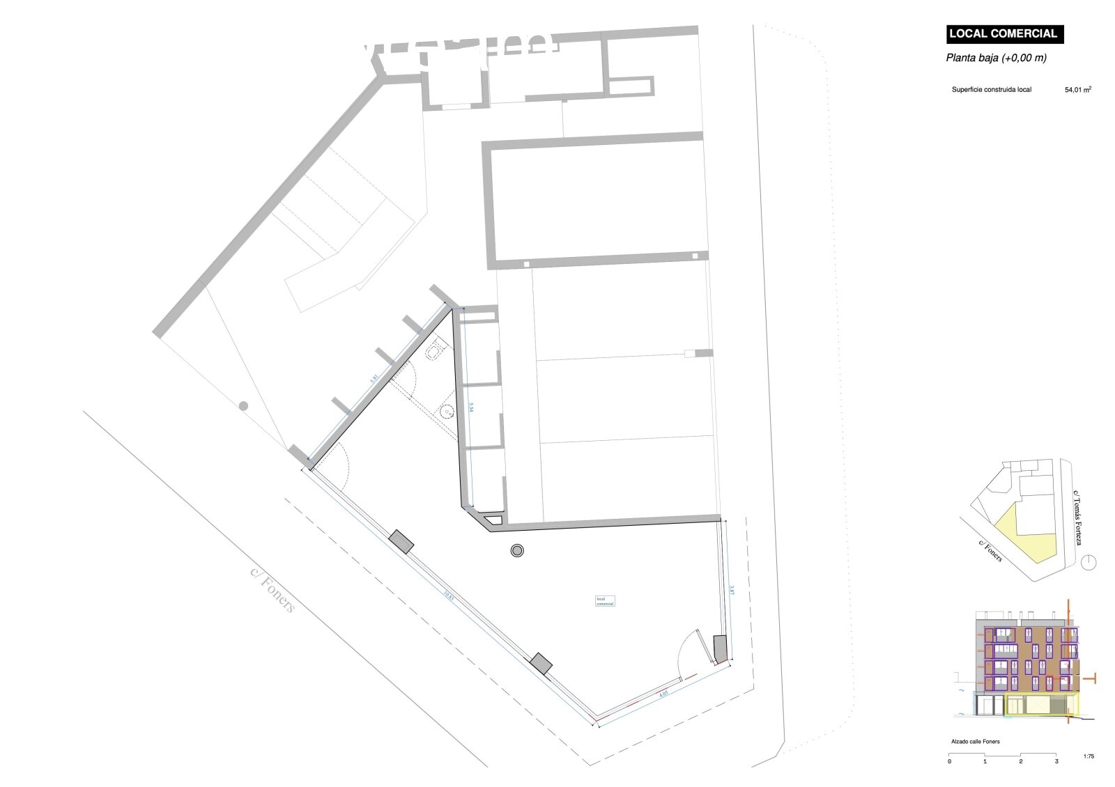
Gesamtfläche ca.:
54 m²
Verkaufsfläche ca.:
54 m²
Verfügbar ab:
sofort
Weitere Informationen
Weitere Informationen
Provisionspflichtig:
nein
Letzte Modernisierung/ Sanierung:
2025
Qualität der Ausstattung:
normal
Umgebung:
Einkaufsmöglichkeit
Zustand:
Erstbezug nach Sanierung
Energieklasse:
In Bearbeitung
Beschreibung
Beschreibung
Objektbeschreibung:
Sie suchen den perfekten Ort für Ihr Geschäft, Atelier, Studio oder Ihre kreative Vision?
Diese offene Gewerbeeinheit mit 50 m² Innenfläche und beeindruckender Raumhöhe von 4,5 Metern bietet Ihnen die ideale Basis – individuell, wandelbar und mit zahlreichen Möglichkeiten zur Nutzung.
Die Fläche eignet sich hervorragend für verschiedenste Nutzungen – von Gastronomie über Einzelhandel bis hin zu Showroom, Atelier oder Büro. Hier schaffen Sie einen Ort, der Ihre Handschrift trägt und Ihre Kunden begeistert.
Diese offene Gewerbeeinheit mit 50 m² Innenfläche und beeindruckender Raumhöhe von 4,5 Metern bietet Ihnen die ideale Basis – individuell, wandelbar und mit zahlreichen Möglichkeiten zur Nutzung.
Die Fläche eignet sich hervorragend für verschiedenste Nutzungen – von Gastronomie über Einzelhandel bis hin zu Showroom, Atelier oder Büro. Hier schaffen Sie einen Ort, der Ihre Handschrift trägt und Ihre Kunden begeistert.
Ausstattung:
Die Highlights auf einen Blick:
• Attraktive Raumhöhe (4,5 m) – ideal für kreative Raumgestaltung, Galerien oder Lofts mit Empore
• Großzügige Fassadenfläche mit Potenzial für Schaufenster oder raumhohe Fensterfronten – maximale Sichtbarkeit für Ihr Business
• Rauchabzug bereits vorhanden – perfekt für gastronomische Nutzung
• Vorinstallationen für Sanitäranlagen bereits vorgesehen
• Option auf kommunale Genehmigung für eine Außenterrasse direkt auf dem Gehweg – attraktives Plus für Gastronomie oder Café-Konzepte
• Flexibler Ausbau ganz nach Ihren Vorstellungen – von Technik bis Oberflächen wählen Sie alles selbst!
Ihr Vorteil:
Sie kaufen nicht einfach nur eine Fläche – Sie gestalten Ihren Traum!
Ob stilvolle Boutique, charmantes Café, kreatives Studio oder funktionales Büro:
Hier ist alles möglich.
• Attraktive Raumhöhe (4,5 m) – ideal für kreative Raumgestaltung, Galerien oder Lofts mit Empore
• Großzügige Fassadenfläche mit Potenzial für Schaufenster oder raumhohe Fensterfronten – maximale Sichtbarkeit für Ihr Business
• Rauchabzug bereits vorhanden – perfekt für gastronomische Nutzung
• Vorinstallationen für Sanitäranlagen bereits vorgesehen
• Option auf kommunale Genehmigung für eine Außenterrasse direkt auf dem Gehweg – attraktives Plus für Gastronomie oder Café-Konzepte
• Flexibler Ausbau ganz nach Ihren Vorstellungen – von Technik bis Oberflächen wählen Sie alles selbst!
Ihr Vorteil:
Sie kaufen nicht einfach nur eine Fläche – Sie gestalten Ihren Traum!
Ob stilvolle Boutique, charmantes Café, kreatives Studio oder funktionales Büro:
Hier ist alles möglich.
Anmerkung:
Die von uns gemachten Informationen beruhen auf Angaben des Verkäufers bzw. der Verkäuferin. Für die Richtigkeit und Vollständigkeit der Angaben kann keine Gewähr bzw. Haftung übernommen werden. Ein Zwischenverkauf und Irrtümer sind vorbehalten.
AGB:
Wir weisen auf unsere Allgemeinen Geschäftsbedingungen hin. Durch weitere Inanspruchnahme unserer Leistungen erklären Sie die Kenntnis und Ihr Einverständnis.
AUF WUNSCH empfehlen wir Ihnen Finanzierungsexperten von namhaften Häusern vor Ort.
Ihr Ansprechpartner

Mallorca Dream Team 2014 S.L.
Herr Jurij Steiger
Av. des bon temps 5
07560 Cala Millor
Büro: www.mallorca-dream.eu
Mobil: +34 634 343458
Herr Jurij Steiger
Av. des bon temps 5
07560 Cala Millor
Büro: www.mallorca-dream.eu
Mobil: +34 634 343458
Zurück zur Übersicht






