Objekt 16 von 26
Nächstes Objekt
Vorheriges Objekt
Zurück zur Übersicht

Zurück zur Übersicht
Nächstes Objekt
Vorheriges Objekt
Zurück zur ÜbersichtPorto Cristo: Sehr schönes Baugrundstück mit Bauprojekt plus Pool in Sa Marineta / Porto Cristo
Objekt-Nr.: G5026.PC
Schnellkontakt
Optionen
Optionen
Basisinformationen
Adresse:
07680 Porto Cristo
Islas Baleares
Islas Baleares
Region:
Mallorca
Grundstück ca.:
18.313 m²
Preis:
295.000 €
Weitere Informationen
Weitere Informationen
Nutzungsart:
Wohnen
Bebaubar nach:
Bebauung nach Bebauungsplan
Verfügbar ab:
sofort
Provisionspflichtig:
nein
Provision:
keine Provision für den Käufer
Beschreibung
Beschreibung
Objektbeschreibung:
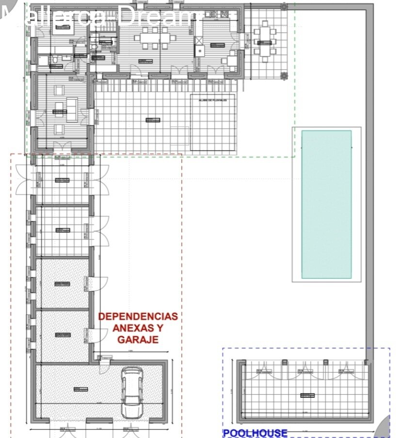
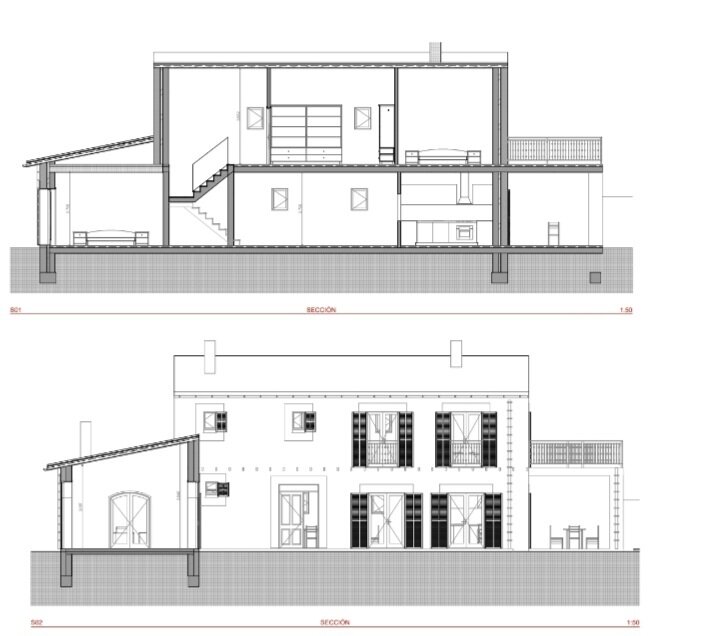
Sehr schönes Baugrundstück in Sa Marineta / Porto Cristo mit Bauprojekt incl. Bau eines Pools. Vom 18.313 m2 großen Baugrundstück dürfen 574 m2 belegt werden. 568 m2 sind in dem Bauprojekt als Nutzfläche geplant incl. Garage, Pool, Porches und Terrassen. Die reine Wohnfläche beträgt ca. 211 m2.
Lage:
Porto Cristo liegt ca. 65 Kilometer vom Flughafen Palma entfernt und hat einen malerischen Hafen und einen beliebten Strand. Berühmt ist Porto Cristo für die Drachenhöhlen mit dem größten unterirdischen See Europas. Der bekannteste Einwohner ist Tennis-Weltstar Rafael Nadal, der auch seine Superyacht im Hafen liegen hat. Genießen Sie hier in einem der vielen typischen Restaurants und Bars leckere Tapas bei einem guten Glas Wein.
Sonstiges:
Die Planung des Bauprojekts hat ein renommierter und erfahrener Architekt gemacht. Gerne sind wir Ihnen bei der Realisierung ihres Bauprojekts behilflich.
Provision:
Keine Provision für den Käufer
Anmerkung:
Die von uns gemachten Informationen beruhen auf Angaben des Verkäufers bzw. der Verkäuferin. Für die Richtigkeit und Vollständigkeit der Angaben kann keine Gewähr bzw. Haftung übernommen werden. Ein Zwischenverkauf und Irrtümer sind vorbehalten.
AGB:
Wir weisen auf unsere Allgemeinen Geschäftsbedingungen hin. Durch weitere Inanspruchnahme unserer Leistungen erklären Sie die Kenntnis und Ihr Einverständnis.
AUF WUNSCH empfehlen wir Ihnen Finanzierungsexperten von namhaften Häusern
Ihr Ansprechpartner

Mallorca Dream Team 2014 S.L.
Herr Armin Thiel
Ronda oeste 40
07680 Porto Cristo
Telefon: +34 971 820510
Mobil: +34 634 310912
Herr Armin Thiel
Ronda oeste 40
07680 Porto Cristo
Telefon: +34 971 820510
Mobil: +34 634 310912
Zurück zur Übersicht














